Popis:
Fischer Termoz CS 8 DT 110V je špeciálna tanierová hmoždinka určená na upevnenie mäkkých tepelných izolantov na betón, plné i dierované murivo, pórobetón a ľahčený betón v súlade s Európskym certifikátom. Kotva sa skladá z plášťa, špeciálneho taniera s priemerom 110 mm a materiálovo kombinovanej skrutky. Táto špeciálna kombinácia predchádza vzniku problémových škvŕn na finálnej fasáde. Termoz CS 8 DT 110V je určená pre zápustnú montáž, ktorá sa robí pomocou AKU skrutkovačky. Po montáži sa zapustená časť hmoždinky zakryje viečkom. Tým je povrch izolantu pripravený na brúsenie a stierkovanie.
Hlavné funkcie:
- Zníženie tepelných mostov vďaka kotevnej skrutke.
- Žiadne kotevné značky na fasáde.
- Vysoké hodnoty v ťahu
- Minimálny krútiaci moment pri aplikácií.
- Žiadne vypadávanie nečistôt vďaka uzavretému tanieriku.
Výhody:
- Kombinovaná skrutka minimalizuje tepelné straty a predchádza vzniku problematických škvŕn na finálnej fasáde.
- Zápustná montáž a prikrytie hmoždinky viečkom vedie ku jednoliatemu povrchu izolačnou vrstvou a následne ku ľahkému brúseniu a spraveniu stierky.
- Kotevná hĺbka len 35 mm podstatne skracuje dobu vŕtania a znižuje opotrebenie vrtáku.
- Pre izolačné dosky hrúbky do 340 mm.
- Jednotná kotevná hĺbka pre všetky certifikované stavebné materiály.
Aplikácia:
- Upevnenie izolačných dosiek na betón a murivo
- Zapustená montáž izolačných materiálov, napr. dosiek z minerálnej vlny
Stavebné materiály:
- Triedy stavebného materiálu A, B, C, D, E
- Betón
- Betón, moniérka
- Tehla plná pálená
- Plné vápennopieskové tehly
- Dutinové panely z ľahčeného betónu
- Zvislé dierované tehly
- Dierované vápennopieskové tehly
- Ľahčený betón
- Pórobetón
Montážny návod:

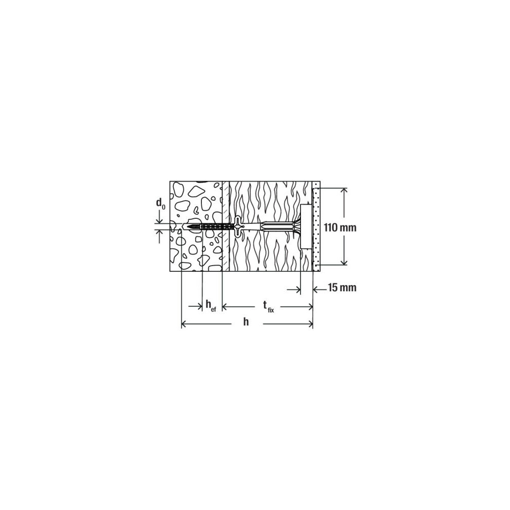
Špecifikácie:
| Priemer vrtáku (d0) | 8 mm |
| Efektívna kotevná hĺbka (hef) | 25 mm |
| Max. užitočná dĺžka pri zápustnej montáži (tfix) | 230 mm |
| Min. hĺbka vyvŕtaného otvoru pri zápustnej montáži | 285 mm |
| Pohon | TX30 |
| Balenie | 50 St. |
| GTIN (EAN-Code) | 4048962420432 |
